この物件は、56回閲覧されました。

| 物件No. | S00065 | ||
|---|---|---|---|
| 物件名 | ローズハイツ香里園 3号棟 | ||
| 所在地 | 寝屋川市松屋町 | ||
| 交通 | 京阪本線香里園駅 徒歩9分 |
||
| 価格 | 2,098万円 | ||
| 管理費 | 9,500円 | 修繕積立金 | 5,590円 |
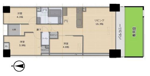
| 専有面積 | 65.41m2 | 内法面積 | |
| バルコニー面積 | 8.32m2 | その他面積 | |
もっと見る 
| 構造 | 所在階 | 1階 | |
|---|---|---|---|
| 間取 | 3LDK | 総戸数 | 142戸 |
| バルコニー方位 | 南 | 駐車場 | 空無 |
| 都市計画 | 市街化区域 | 用途地域 | 第二種住居地域/近隣商業地域 |
| 建築確認番号 | 法令上の制限 | ||
| 地目 | 宅地 | 現況 | 空家 |
| 小学校 | 北小学校 | 中学校 | 第三中学校 |
| 管理組合 | 自主管理 | ||
| 引渡時期 | 即時 | 取引態様 | 売主 |
| 設備 | 電気/都市ガス/上水道/下水道/給湯/エレベータ/庭 | ||
| 備考 | |||
© 2025 SKY REQUEST Co., Ltd.